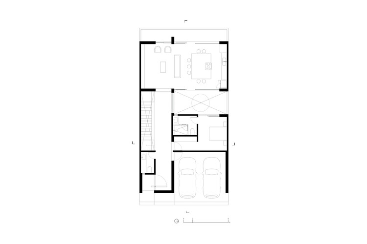
Descripción enviada por el equipo del proyecto. La vivienda se concibe como un refugio sereno, donde la arquitectura y la naturaleza dialogan a través de materiales honestos y gestos espaciales precisos. Desde el acceso, la composición volumétrica revela una propuesta introspectiva: los muros perimetrales generan una envolvente sobria que protege un interior luminoso, articulado en torno a patios centrales que actúan como núcleos de vida y contemplación.

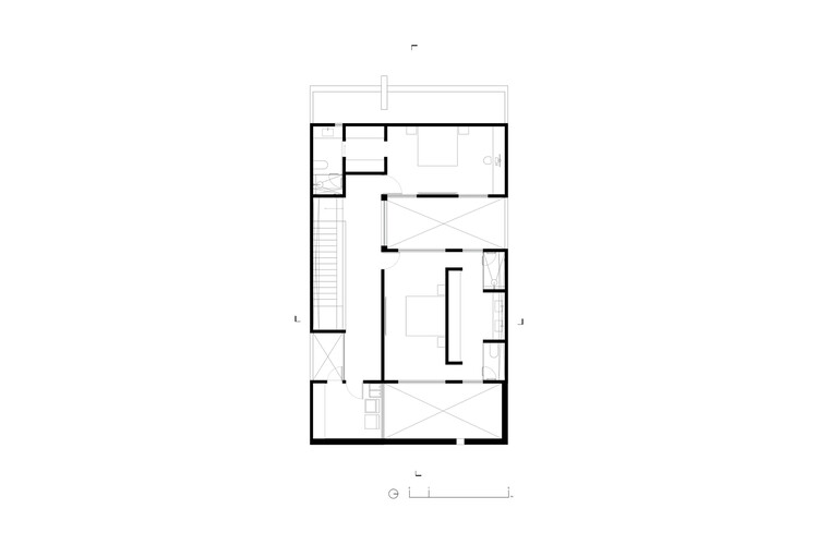
El corazón de la casa es un patio interior dominado por un olivo, cuya presencia escultórica da nombre y sentido a la vivienda. Este espacio, enmarcado por ventanales de piso a techo, permite que la luz natural penetre con suavidad, bañando los interiores y generando un juego constante de sombras a lo largo del día. La elección de materiales: concreto aparente, recubrimientos minerales y cancelería esbelta de color negro refuerza la sensación de atemporalidad y sobriedad.


La escalera flotante constituye uno de los elementos protagonistas de la composición interior. Suspendida sobre el muro, sus peldaños macizos parecen emerger con ligereza, enfatizando la precisión estructural y el dominio técnico del proyecto. La ausencia de algún tipo de protección y la continuidad visual con el muro lateral potencian la sensación de ligereza, mientras que la textura cálida del material equilibra la solidez del concreto circundante.



La relación interior–exterior se resuelve mediante amplios paños de vidrio que vinculan las áreas sociales con jardines contenidos. Estos patios secundarios, tratados con gravilla triturada, vegetación mediterránea y rocas naturales, aportan frescura visual y control climático pasivo, al tiempo que preservan la privacidad hacia el exterior. La arquitectura se pliega en torno a estos vacíos, configurando recorridos fluidos y espacios que invitan a la pausa.

Cada decisión responde a ciertos objetivos: manejar la luz natural, priorizar la ventilación cruzada y reducir los elementos innecesarios. El resultado es una vivienda contemporánea, atemporal, introspectiva y cálida, donde la materialidad desnuda se combina con una composición espacial refinada. Más que una casa, es un escenario donde el paso del tiempo, la luz y la naturaleza completan la obra arquitectónica.







